The Selby Centre sits at the heart of the Selby Urban Village, a new masterplan transforming a former secondary school site and underutilised playing fields into a new community hub with upgraded facilities, new connections to the park, enhanced sports amenities and new social housing. The project, for Haringey Council, creates a better-connected and inclusive place for people to live, learn, work and gather. The scheme was approved for planning in Spring 2025.
The Centre has a longstanding role as a service provider and a pillar of local identity and culture for the area. Currently situated in an outdated school building, the facilities provide space for local groups and businesses. The masterplan relocates the Selby Centre to a key location at Bull Lane playing fields, freeing up the old school site for 202 new council rent homes, directly addressing local affordable housing need.
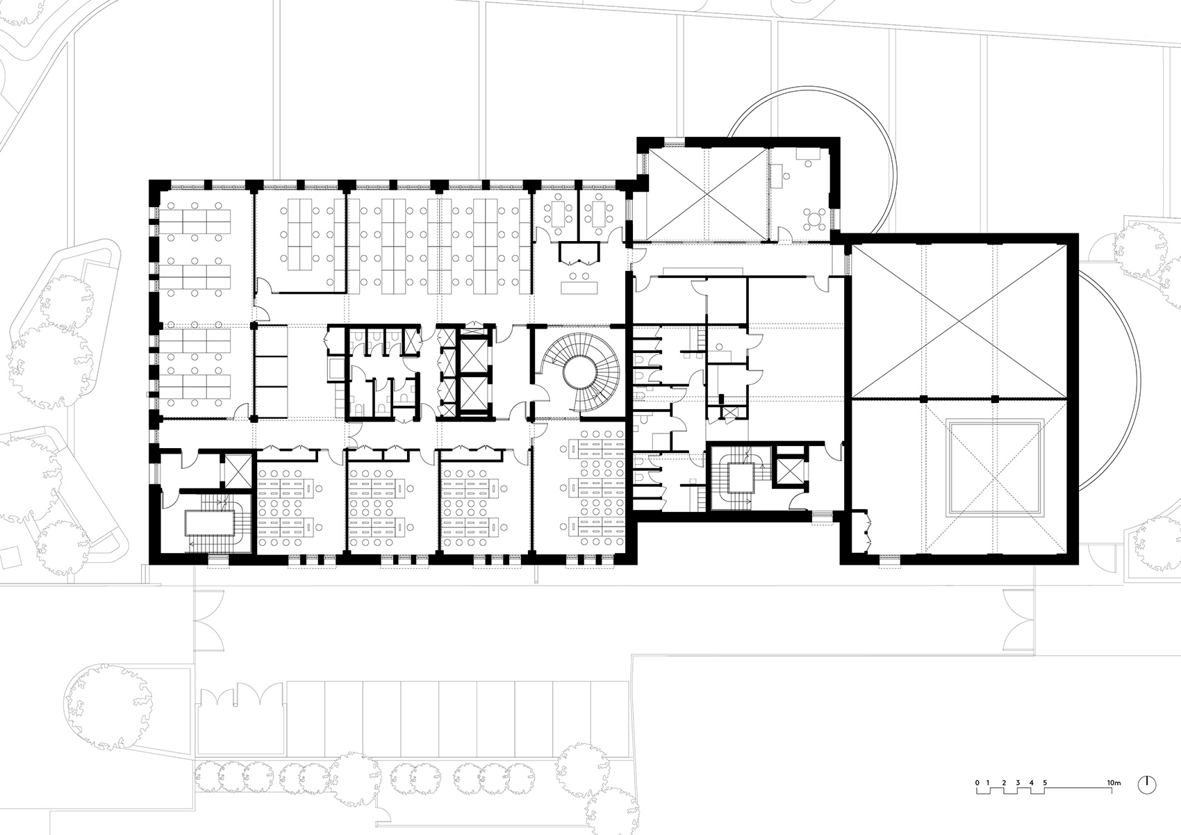
Developed with Haringey Council and the Selby Trust, the project was shaped by a community-led brief reflecting feedback from local groups and licensees keen to create a new social and work hub. Designed for flexibility, the spaces facilitate a layered programme of activities, supporting civic and community use, affordable workspaces, social events, education, childcare, and sports.
The project revitalises the local park, balancing sports and informal use, while increasing biodiversity and creating a welcoming space for all to use. Encouraging activity to spill into the landscape, the design helps residents reclaim the Bull Lane playing fields. The development includes extensive sports and recreational facilities, such as a 3G pitch, cricket and football pitches, an outdoor gym and a running route, encouraging physical activity. New pedestrian and cycling routes break down barriers, while community planting areas animate park thresholds.
Reimagined as a factory for community activity, the project creates an inclusive civic space reflecting the needs of the centre’s users. The flexible layout accommodates a range of cultural, social, and economic activities, ensuring long-term relevance as community needs evolve.
The new Selby Centre establishes a focal point for the area while combining a low-carbon CLT glulam structure with a sustainable passive strategy. Featuring deep facades and articulated lintels, the building responds to its different orientations, providing natural shading and minimising running costs. The design aims to help the community thrive, inspiring both pride and delight for locals and visitors alike.















