Located adjacent to Acton Town in the London Borough of Ealing, our renewal of the Steyne Estate re-envisions a 1970s housing estate to create a contemporary housing project that responds to the site’s undulating topography, and two 22-storey 1970s Large-Panel-System (LPS) estate buildings; Moreton and Rufford Towers, which will be maintained and upgraded over time.
A 20-storey building crafted in warm domestic brick tones addresses the busy Steyne Road to the east containing a mix of 1,2 and 3-bedroom dual-aspect dwellings and a double-height communal lobby located at ground floor. The orientation and shape of this taller building responds to the scale and alignments of the existing estate block to optimise aspect, light and views, while minimising overlooking between the two. Open recessed balconies are carved out on alternate facades, forming an ordered rhythm of open and closed sides which are intentionally off-set with the existing block. These sculptural qualities are carried across the elevations through the presence of deep-set windows and crisp pre-casting detailing which will animate the building with light and shadow throughout the day.
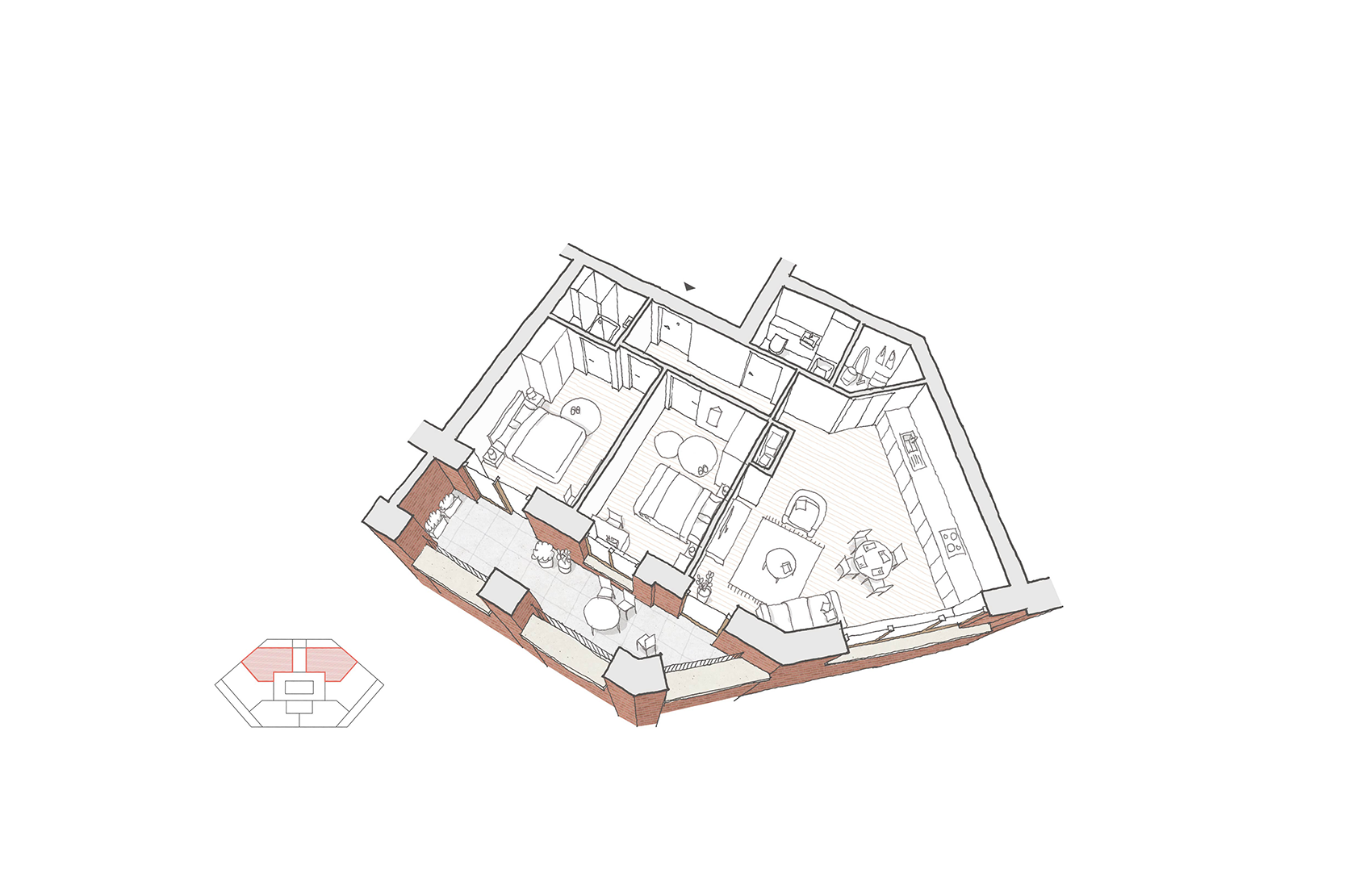
To the east, a building for older adults shares a similar material language and features individual architectural elements including centrally paired balconies that recall the character of nearby homes. Internal layouts are designed to promote a sense of comfort, safety and wellbeing for residents; communal entrances are arranged to frame views into an enclosed courtyard garden, and a triple-aspect communal lounge connects through to a shared outdoor terrace, promoting interactions with neighbours and the outdoors. Spacious family dwellings are contained within a block to the west; placed above a landscaped podium to negotiate a 4m level change and create a better relationship with the street. To reduce energy consumption and keep fuel bills low, the design incorporates a number of passive measures including thermally-efficient fabric and naturally ventilated spaces.
In addition to the creation of new homes, our designs have explored options to re-purpose the large undercrofts of the existing estate buildings with new civic uses to create a more active relationship with the ground floor and public realm. Across the site, new and retained buildings are united within a multi-generational play landscape featuring a network of connecting pedestrian paths and existing mature trees.



















